hovedbilde prospekt

Enestående, prosjektert laftehytte på en av Vardens råeste tomter

Fåvang

Se 16 bilder

Map pin

Kvitfjell, Fåvang

En 279

Varden 252

  • 27 000 000 + omk.
  • I
  • 305 m²
  • I
  • 5 Soverom

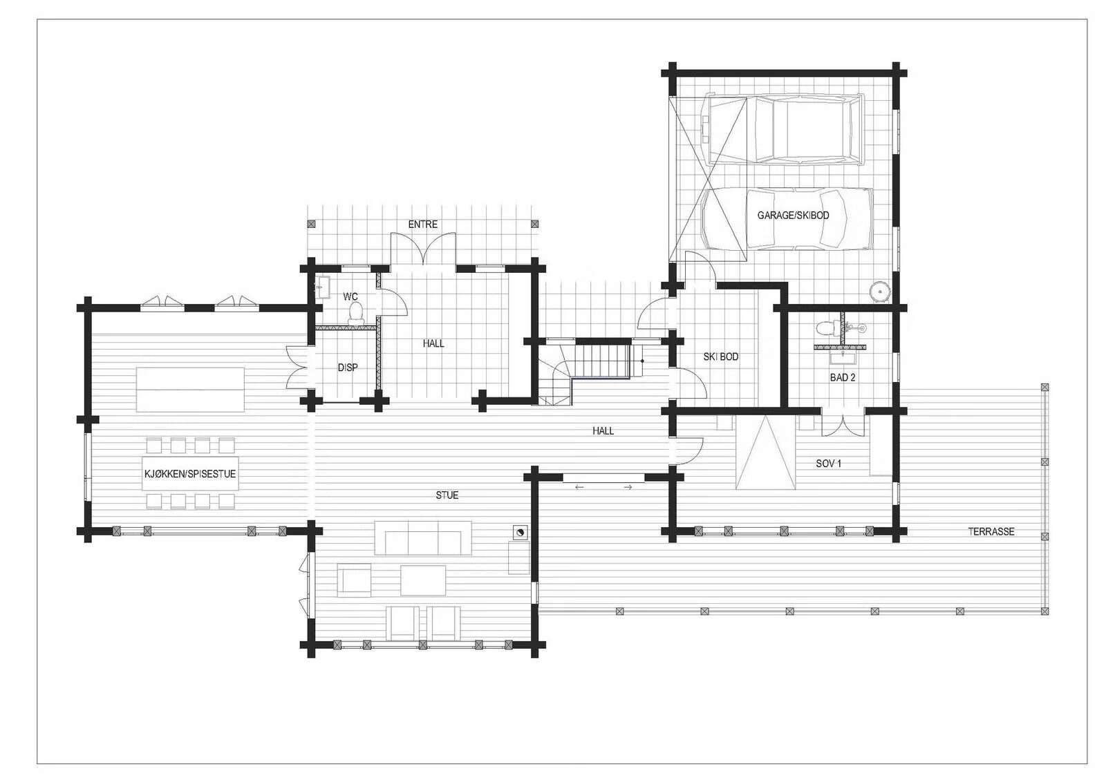
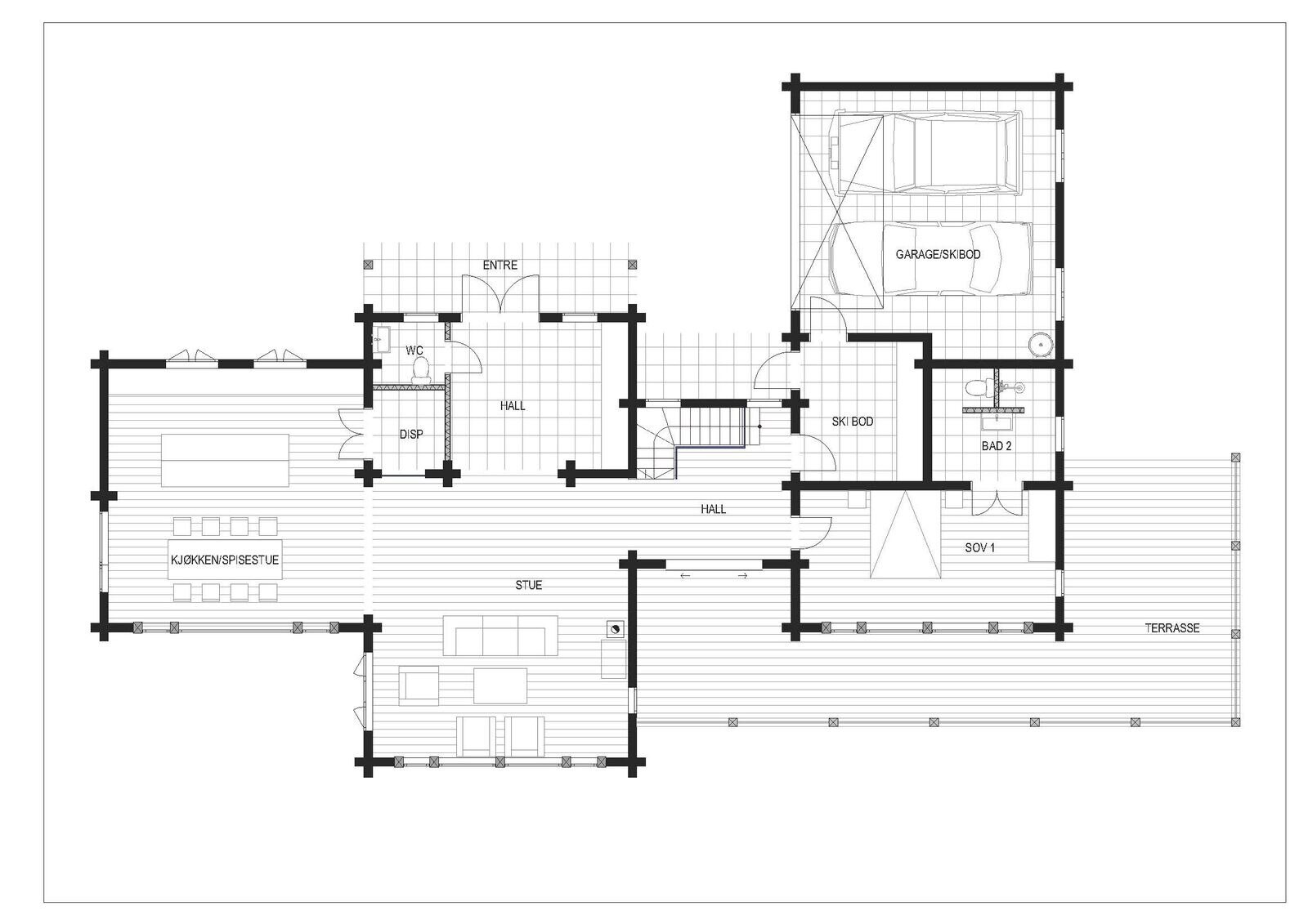
Varden 252 - På 950 meters høyde kommer det nå en eksklusiv laftehytte med perfekt ski-inn/ut til både alpinbakkene og langrennsløypene på Kvitfjell. Ta på deg skiene, pust inn den rene fjelluften og la blikket vandre før du sklir nedover løypene.

Panoramautsikt og perfekt Ski-inn/-ut!

Hytta er tegnet med fokus på gjennomtenkte løsninger, romslige oppholdsarealer og materialvalg av høy standard. Store vindusflater vil gi rikelig med naturlig lys og skape en sømløs overgang mellom inne og ute, mens peis og lune oppholdsrom legger til rette for hygge og avslapning.

Kort fortalt:
- Velutstyrt kjøkken med kjøkkenøy
- Eget vinrom på kjøkkenet
- Vannbåren varme
- Stor masteravdeling
- Integrert dobbelgarasje
- Stor TV-stue
- Stor skibod
- 5 store soverom
- Egen SPA-avdeling
- Attraktiv beliggenhet i blindvei
- Eksklusive materialer
- Gode solforhold
- Fantastisk utsikt
- Svært god takhøyde
- Store vindusflater

Velkommen til fjells – bli med på eventyret.

Info

Boligtype
Fritidsbolig
BRA-i
305 m²
BRA-b
305 m²
BRA-tb
50 m²
Prisantydning
27 000 000 kr

Bilder

Meglerkontor

Meglere