Frogner, Oslo
Solheimgata 1A
- 29 900 000 + omk.
- I
- 173 m²
- I
- 4 Soverom
- I
- 3 Bad
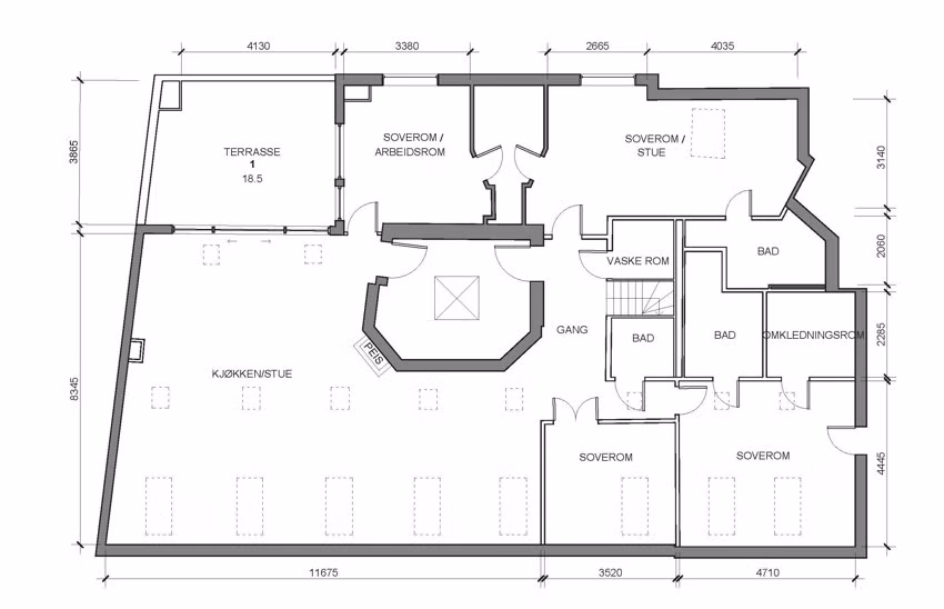
Toppleilighet med takterrasse, utekjøkken, heisadkomst og garasje. Nyoppført med ferdigattest i 2022. Design, materialer og utstyr er av utsøkt kvalitet, med stor vekt på eksklusive detaljer, tekniske løsninger og håndverksmessig presisjon. Den imponerende takhøyden og de mange takvinduene slipper inn rikelig naturlig lys, supplert av belysning fra Light Point
Leiligheten har en gjennomtenkt planløsning med 4 soverom, 3 bad, stue/spisestue, stue/bibliotek/soverom og et eksklusivt kjøkken fra Poggenpohl. Øvre plan er innredet hems. Mastersuiten har eget bad og omkledningsrom, designet av interiørkonsulent og produsert av møbelsnekker. Det samme gjelder garderober, servantmøbler, bokhyller og rekkverk, utført med førsteklasses håndverk. Leiligheten fyller toppetasjen, uten tilstøtende naboer
Bilder
Meglere
Oslo
-
Stor frittliggende familiebolig med solrik og idyllisk hage 397 m²
- Priorveien 2H, Smedstad/Heggeli, Oslo
- 6 Soverom
35 000 000 + omk.
PrivatMegleren Norge
-
Ny og rålekker toppleilighet med spektakulær panoramautsikt 135 m²
- Jerpefaret 12, Holmenkollen, Oslo
- 2 Soverom
- 2 Bad
23 500 000 + omk.
PrivatMegleren Dyve & Partnere
-
Unik ny byvilla tegnet av SKAPA Arkitekter 202 m²
- Vallegata 7, St. Hanshaugen, Oslo
- 4 Soverom
- 3 Bad
38 000 000 + omk.
PrivatMegleren Dyve & Partnere
-
Arkitekttegnet villa på 1,8 mål utsiktstomt 356 m²
- Nils Collett Vogts vei 36, Røa, Oslo
- 4 Soverom
- 2 Bad
32 000 000 + omk.
PrivatMegleren Dyve & Partnere
-
Påkostet topp-/frontleil. m/ panoramautsikt 116 m²
- Rostockgata 98, Bjørvika, Oslo
- 2 Soverom
- 3 Bad
29 800 000 + omk.
PrivatMegleren Dyve & Partnere